Broadway Avenue, Trench, Telford

Offers In The Region Of £279,500

4 2 2

Trench is a well established residential area of north Telford and is located about three miles from Telford Town Centre, with its covered shopping centre, retail and leisure parks and M54 connection points. Most local amenities are available close by, including small parades of shops, pubs, primary and secondary schools.

The gas centrally heated and double glazed accommodation is set out in further detail below;

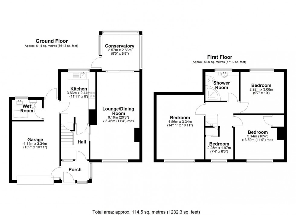
Porch

Being fully uPVC and double glazed having an internal door to the garage and door to...

Entrance Hall

With radiator and laminate floor.

Lounge/Dining Room (6.16 x 3.46 (max))

Being of good size, having a central fireplace incorporating a coal effect gas fire. Front aspect double glazed bay window and two radiators. Sliding double glazed doors into...

Conservatory (2.57 x 2.63)

Being partially bricked with double glazed elevations above and lined roof. Radiator and spotlights. Side door to garden.

Kitchen (3.63 x 2.44)

Having base and wall mounted units comprising cupboards and drawers with wood effect work surfaces above. Composite 1 1/2 sink with drainer and mixer tap. Integrated oven, microwave and grill. 5 ring gas hob with extractor fan above. Breakfast bar. Rear aspect uPVC double glazed window and radiator. Door to...

Inner hall

Having a courtesy door to the rear garden and door to...

Wet Room

Being partially tiled with electric shower unit, wash basin with cupboard below and low-level flush WC. Rear aspect uPVC double glazed window and towel radiator.

Garage (4.14 x 3.34)

Having an electric up and over door to the front, power and light. Storage for tools, ladders and general workshop materials. Laminated work surfaces, electrical points and cupboards . Central heating radiator.

Stairs from the Entrance Hall rise to the first floor Landing, with hatch to loft.

Bedroom One (4.56 x 3.34)

A good sized double bedroom, having front aspect uPVC double glazed window and radiator.

Bedroom Two (3.14 x 3.59 (max))

Having a front aspect uPVC double glazed window and radiator. Shelved cupboard housing hot water cylinder.

Bedroom Three (2.92 x 3.06)

Having a rear aspect uPVC double glazed window and radiator.

Bedroom Four (2.25 x 1.97)

Having a front aspect uPVC double glazed window and radiator. Cupboard with hanging rail.

Shower Room

Being fully tiled with corner shower cubicle having a mains fed shower head. Low-level flush WC and wash basin with cupboard below. Rear aspect uPVC double glazed window and radiator.

Outside

The front garden has been landscaped to a block pavioured driveway providing off-road and neatly shaped lawn with shrubbed borders. The low-maintenance rear garden is set to a block pavioured patio area and artificial grass. Paved path leading to garden shed. Shrubbed borders and external lights.

Additional Information

COUNCIL TAX: We are advised by the Local Authority, Telford & Wrekin Council, that the property is in Band B.

EPC RATING: C (70)

TENURE: We are advised by the Vendor, that the property is held Freehold and vacant possession will be given upon completion.

SERVICES: We understand that mains water, electricity, gas and drainage are connected.

BROADBAND AND MOBILE SERVICES: We understand that broadband and mobile phone service is available at this property. Please check https://www.ofcom.org.uk/phones-telecoms-and-internet/advice-for-consumers/advice/ofcom-checker for details.
*Vendors have made us aware that there are/are not mobile black spots within the property (give details).

ADDITIONAL CHARGES: The vendors are not aware of any.

RIGHTS AND RESTRICTIONS: The vendors are not aware of any.

FLOODING ISSUES: The property has not flooded in the last 5 years.

PLANNING PERMISSIONS/DEVELOPMENTS: The vendors are not aware of any.

COAL FIELDS/MINING: The vendors are not aware of any mining related issues having affected the property. However, Telford is an historic mining area and prospective purchasers are advised to make their own enquiries regarding this issue.

VIEWING: Strictly by prior appointment with the Agents. Tel: 01952 812519 Email: sales@tempertons.co.uk

Agents Notes

1. Whilst we endeavour to make our sales details accurate and reliable, if there is any point which is of particular importance to you, if you wish to ask a specific question about this property, please speak to the sales advisor who has inspected the property and we will try to check the information for you.

The information in these property details is believed to be accurate but Tempertons does not give, nor does any Partner or employee have authority to give, any warranty as to the accuracy of any statement, written, verbal or visual. You should not rely on any information contained herein.

2. Please note that we have not tested the equipment/appliances and services in the property. Interested applicants are advised to commission their own appropriate investigations before formulating their offer to purchase.

3. Our room sizes are quoted in metres on a wall-to-wall basis to the nearest one tenth of a metre. The imperial equivalent is only intended as an approximate guide for those not yet conversant with metric measurements. Measurements should not be used for ordering fitments, new carpets or furniture etc.

4.The text, photographs and plans are for guidance only and are not necessarily comprehensive. It should not be assumed that the property has all necessary planning, building regulation or other consents and potential purchasers must satisfy themselves by inspection or otherwise.

5. AML Regulations: to ensure compliance with the latest Anti Money Laundering Regulations, all intending purchasers will be asked to produce ID to enable us to complete verification checks and to apply ongoing monitoring until the transaction ends. Whilst this is the responsibility of Tempertons, we may use the services of Guild365 or similar companies to verify Clients' identity. This is not a credit check and therefore will have no effect on your credit history. You agree for us to complete these checks and the cost of these checks is £30.00 inc. VAT per buyer. This is paid in advance, when an offer is agreed and prior to a Memorandum of Sale being issued. This charge is non-refundable.

HOMEBUYERS SURVEYS AND VALUATIONS undertaken by Chartered Surveyors with considerable experience in preparing a wide range of surveys and valuations, to suit all requirements. Details of fees given without obligation.

PROPERTY LETTING – Tempertons have considerable experience in the Letting and Management of all types of residential property. Further details given without obligation.

Floorplan for Broadway Avenue, Trench, Telford
EPC Graph for Broadway Avenue, Trench, Telford
Similar Property

Get an instant online valuation

Find out how much your property is worth