Moss Road, Wrockwardine Wood, Telford

Offers In The Region Of £250,000

3 1 2

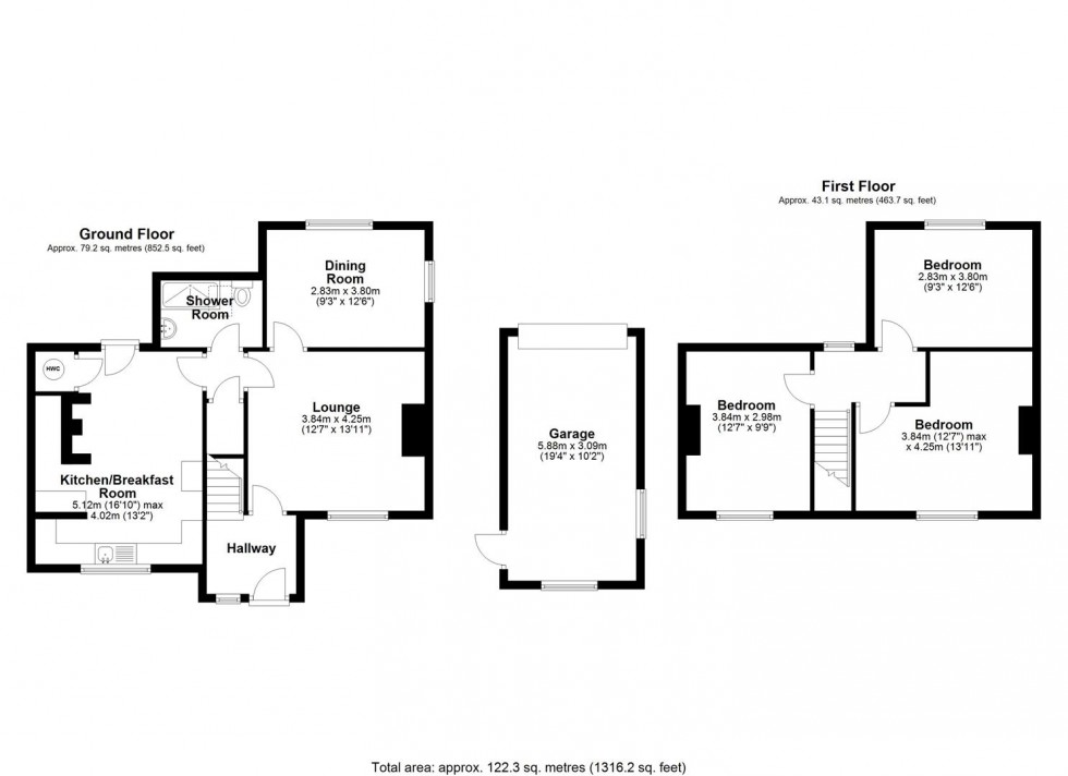
The Laurels is an extended detached period house of brick and tile construction positioned on a large plot, situated in a desirable residential location. The property would benefit from some upgrading / refurbishment but offers spacious accommodation across two floors. The ground floor is set out to two reception rooms, a kitchen and shower room and the first floor having three double bedrooms. The property is gated and provides ample off road parking, a detached garage, car port and summer house.

Wrockwardine Wood is a popular and well established residential area of central Telford, and benefits from having a good range of local amenities close by, including a parade of shops at Donnington, an Asda supermarket/petrol filling station, medical centre and pharmacy, and both primary and secondary schools. There is also the Cockshut country park nearby as well as a leisure centre, tennis centre with indoor and outdoor courts, athletics track and all weather pitches.

Offered with NO UPWARD CHAIN, set out in further details below;

Front door into...

Entrance Hall

With radiator. Door to...

Lounge (4.25 x 3.84)

A well proportioned room, having a central brick fireplace with alcove. Front aspect double glazed window and radiator.

Dining Room / Bedroom (3.80 x 2.83)

Side and rear aspect double glazed windows. Radiator.

Inner Hall

With door to large understairs cupboard and door to...

Shower Room

Being fully-tiled, having a walk-in shower with mains fed shower head. Wash basin with cupboard below and low-level flush WC. Side aspect double glazed window and sky light. Radiator.

Kitchen / Breakfast Room (5.12 max x 4.02)

Base and wall mounted units comprising cupboards and drawers with contrasting work surfaces above. 1 1/2 stainless steel sink with drainer. Space for oven with extractor above. Space for washing machine. Central tiled alcove with log burner. Cupboard housing hot water cylinder. Front aspect double glazed window and rear door to garden.

Stairs from the Entrance Hall rise to the first floor Landing, with rear aspect double glazed window and radiator.

Bedroom One (3.84 x max x 4.25)

Front aspect double glazed window and radiator.

Bedroom Two (3.84 x 2.98)

Front aspect double glazed window and radiator.

Bedroom Three (3.80 x 2.83)

Rear aspect double glazed window and radiator.

Outside

Double galvanised gates off Summer Crescent open to a block pavioured driveway providing ample off-road parking leading to a GARAGE with power and light and CARPORT with outside tap. Steps to the rear garden, set to lawn with shrubbed areas. Summer house with power, light and decking area. Storage shed.
Gated access to the both sides of the house allow access to the large front garden, set to lawn and patio areas. Green house.

Additional Information

COUNCIL TAX: We are advised by the Local Authority, Telford & Wrekin Council, that the property is in Band: B

EPC RATING: D (63)

TENURE: We are advised by the Vendor, that the property is held Freehold and vacant possession will be given upon completion.

SERVICES: We understand that mains water, electricity, gas and drainage are connected.

BROADBAND AND MOBILE SERVICES: We understand that broadband and mobile phone service is available at this property. Please check https://www.ofcom.org.uk/phones-telecoms-and-internet/advice-for-consumers/advice/ofcom-checker for details.

ADDITIONAL CHARGES: The vendor is not aware of any.

RIGHTS AND RESTRICTIONS: The vendor is not aware of any.

FLOODING ISSUES: The property has not flooded in the last 5 years.

PLANNING PERMISSIONS/DEVELOPMENTS: The vendor is not aware of any,

COAL FIELDS/MINING: We are not aware of any mining related issues having affected the property. Telford is an historic mining area and potential buyers are advised to make their own enquiries with regards to this.

VIEWING: Strictly by prior appointment with the Agents. Tel: 01952 812519 Email: sales@tempertons.co.uk

DIRECTIONS: From the 'Guns' island at Donnington, take the first exit and the third exit at the second roundabout onto Wrekin Drive. Continue along this road and then take a right at the traffic lights onto Oakengates Road, proceed along this road into Furance Lane and then at the T juction, turn left onto Moss Road. The property can be found on your right after a short distance but continue along the road and turn right into Summer Crescent. The driveway and the property can be found on your right hand side toward the end of the road.

Agents Notes

1. Whilst we endeavour to make our sales details accurate and reliable, if there is any point which is of particular importance to you, if you wish to ask a specific question about this property, please speak to the sales advisor who has inspected the property and we will try to check the information for you.

The information in these property details is believed to be accurate but Tempertons does not give, nor does any Partner or employee have authority to give, any warranty as to the accuracy of any statement, written, verbal or visual. You should not rely on any information contained herein.

2. Please note that we have not tested the equipment/appliances and services in the property. Interested applicants are advised to commission their own appropriate investigations before formulating their offer to purchase.

3. Our room sizes are quoted in metres on a wall-to-wall basis to the nearest one tenth of a metre. The imperial equivalent is only intended as an approximate guide for those not yet conversant with metric measurements. Measurements should not be used for ordering fitments, new carpets or furniture etc.

4.The text, photographs and plans are for guidance only and are not necessarily comprehensive. It should not be assumed that the property has all necessary planning, building regulation or other consents and potential purchasers must satisfy themselves by inspection or otherwise.

5. AML Regulations: to ensure compliance with the latest Anti Money Laundering Regulations, all intending purchasers will be asked to produce ID to enable us to complete verification checks and to apply ongoing monitoring until the transaction ends. Whilst this is the responsibility of Tempertons, we may use the services of Guild365 or similar companies to verify Clients' identity. This is not a credit check and therefore will have no effect on your credit history. You agree for us to complete these checks and the cost of these checks is £30.00 inc. VAT per buyer. This is paid in advance, when an offer is agreed and prior to a Memorandum of Sale being issued. This charge is non-refundable.

HOMEBUYERS SURVEYS AND VALUATIONS undertaken by Chartered Surveyors with considerable experience in preparing a wide range of surveys and valuations, to suit all requirements. Details of fees given without obligation.

PROPERTY LETTING – Tempertons have considerable experience in the Letting and Management of all types of residential property. Further details given without obligation.

Floorplan for Moss Road, Wrockwardine Wood, Telford
EPC Graph for Moss Road, Wrockwardine Wood, Telford
Similar Properties

Get an instant online valuation

Find out how much your property is worth