Marsh Road, Edgmond

Offers In The Region Of £549,950

4 2 1

Built originally in the late 1960s, this family home has been extended and improved most recently around 2019 and enjoys flexible and good sized accommodation over two floors, having delightful and private gardens to the rear. The property is ideally situated with many public footpaths / countryside walks on the immediate footstep.

Edgmond is a rural village which sits in the north east of the Shropshire countryside, about two miles from Newport, with its highly regarded schools, leisure and shopping facilities; approximately eight miles from Telford and fifteen miles from Shrewsbury, larger towns with even more amenities, rail and motorway links. The village itself has many facilities and amenities, including two pubs (The Edgmond Lion and The Lamb) and St Peter’s Church. There are playing fields in the centre of the village with cricket & football pitches set out. There is a playground for young children behind the Bowling Club and a fenced multi-purpose games area next to the Cricket Pavilion. The Post Office is positioned in the Village Stores on the High Street also in the centre of the village.

The double glazed and gas centrally heated accommodation comprises in more detail;

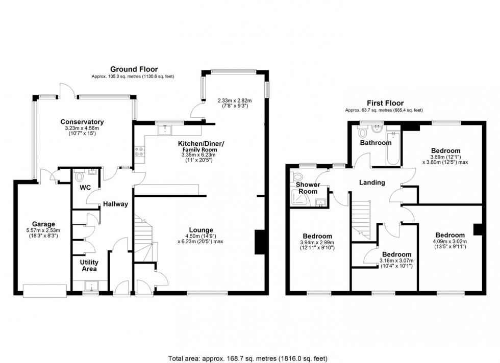
PORCH

With panelled front door and glazed unit into...

Entrance Hall

Having radiator and glazed screen.

Good sized Lounge (6.23 max x 4.50)

With decorative fire surround and recess incorporating a cast iron wood burner. Coved finish to ceiling and radiator. uPVC double glazed front aspect window.

Modern 'L' Shaped Kitchen / Family Dining Area (6.23 x 3.35)

Having a range of modern shaker style cabinets comprising base and wall mounted cupboards and drawers with quartz effect composite work surfaces. Inset Belfast sink and drainer. Built-in SMEG eye level double oven and grill with integrated microwave oven. Integrated larder fridge and dishwasher. An attractive hardwearing tiled floor covering continues to the Family Dining Area separated from the Lounge by glazed bi-fold doors. Large double glazed picture window having rear aspect with views of the garden with and built-in box seating. Contemporary wall radiator.

Door into rear Hall leads to the...

Utility Area (3.30 x 1.75)

With inset ceramic sink and composite work surfaces either side having fitted base cupboards below. Front aspect double glazed window and second access entrance door. Additional built-in storage cupboard housing freezer and white goods. Contemporary wall radiator.

Guest Cloakroom

With wall mounted slimline wash basin having base cupboard below. Low-level flush WC. Vintage style radiator and tiled floor.

Glazed doors from the rear Hallway into...

Conservatory (4.50 x 3.25)

Having central lantern roof and windows on three sides with sealed units enjoying views of the garden. Radiator and external door.

Turned stairs from the lounge rise to a first floor Landing, having built-in Airing cupboard.

Bedroom (4.09 x 3.02)

Having radiator and uPVC double glazed front aspect window. Access hatch to loft space. Coved finish to ceilings.

Bedroom (3.80 x 3.69)

Having a rear aspect double glazed window and radiator. Coved finish to ceiling.

Bedroom (3.94 x 2.99)

Having double glazed front aspect window and radiator.

Separate Shower Room

Having corner shower cubicle with curved sliding doors and mains feed shower. Wash hand basin with base cupboard below. Low level flush WC. Double glazed window with patterned glazing.

L Shaped Bed / Office (3.05 x 1.85 to 3.15)

Currently used as a home office with built-in shelved storage over the stairs . Radiator and double glazed front aspect window.

Family Bathroom

Comprising modern white suite having panelled bath and full-height tiled surround with mains fed shower over and modesty screen. Pedestal wash hand basin and WC. Chrome faced ladder radiator and double glazed window.

Outside

The property is approached off Marsh Road over a wide paviored driveway offering ample off-road parking for several vehicles with ornamental stone areas partly screened by a mature beech hedge leading to the GARAGE (5.70 x 2.45) With access door to rear into Sun Room and up / over door. Power and light.

A side gate opens to a most delightful and private rear garden, laid to shaped lawns and side borders planted with a variety of mature shrubs, plants, perennials etc. Full width paved patio enjoying a sunny aspect. Several storage sheds and a wooden summer house fronted by a wooden pergola with climbing vines. Useful screened area towards the rear housing a substantial store of dried logs ready for the wood burner. Outside tap.

Additional Information

COUNCIL TAX: We are advised by the Local Authority, Telford & Wrekin Council, that the property is in Band: E

EPC RATING: C

TENURE: We are advised by the Vendors, that the property is held Freehold and vacant possession will be given upon completion.

SERVICES: We understand that mains water, electricity, gas and drainage are connected.

BROADBAND AND MOBILE SERVICES: We understand that broadband and mobile phone service is available at this property. Please check https://www.ofcom.org.uk/phones-telecoms-and-internet/advice-for-consumers/advice/ofcom-checker for details.

ADDITIONAL CHARGES: The vendors are not aware of any.

RIGHTS AND RESTRICTIONS: The vendors are not aware of any.

FLOODING ISSUES: The property has not flooded in the last 5 years.

PLANNING PERMISSIONS/DEVELOPMENTS: The vendors are not aware of any.

COAL FIELDS/MINING: The vendors are not aware of any affecting the property.

VIEWING: Strictly by prior appointment with the Agents. Tel: 01952 812519 Email: sales@tempertons.co.uk

DIRECTIONS: From Newport High Street continue past the church into Lower Bar and continue over the mini roundabout by the petrol station, and then turn left at the next mini roundabout, heading out towards Edgmond. Continue into the village of Edgmond, turning right onto Marsh Lane, where the property can be found on the right hand side, after approximately ¼ mile.

Agents Notes

1. Whilst we endeavour to make our sales details accurate and reliable, if there is any point which is of particular importance to you, if you wish to ask a specific question about this property, please speak to the sales advisor who has inspected the property and we will try to check the information for you.

The information in these property details is believed to be accurate but Tempertons does not give, nor does any Partner or employee have authority to give, any warranty as to the accuracy of any statement, written, verbal or visual. You should not rely on any information contained herein.

2. Please note that we have not tested the equipment/appliances and services in the property. Interested applicants are advised to commission their own appropriate investigations before formulating their offer to purchase.

3. Our room sizes are quoted in metres on a wall-to-wall basis to the nearest one tenth of a metre. The imperial equivalent is only intended as an approximate guide for those not yet conversant with metric measurements. Measurements should not be used for ordering fitments, new carpets or furniture etc.

4.The text, photographs and plans are for guidance only and are not necessarily comprehensive. It should not be assumed that the property has all necessary planning, building regulation or other consents and potential purchasers must satisfy themselves by inspection or otherwise.

5. AML Regulations: to ensure compliance with the latest Anti Money Laundering Regulations, all intending purchasers will be asked to produce ID to enable us to complete verification checks and to apply ongoing monitoring until the transaction ends. Whilst this is the responsibility of Tempertons, we may use the services of Guild365 or similar companies to verify Clients' identity. This is not a credit check and therefore will have no effect on your credit history. You agree for us to complete these checks and the cost of these checks is £25.00 inc. VAT per buyer. This is paid in advance, when an offer is agreed and prior to a Memorandum of Sale being issued. This charge is non-refundable.

HOMEBUYERS SURVEYS AND VALUATIONS undertaken by Chartered Surveyors with considerable experience in preparing a wide range of surveys and valuations, to suit all requirements. Details of fees given without obligation.

PROPERTY LETTING – Tempertons have considerable experience in the Letting and Management of all types of residential property. Further details given without obligation.

Floorplan for Marsh Road, Edgmond
EPC Graph for Marsh Road, Edgmond
Similar Property

Get an instant online valuation

Find out how much your property is worth